Bản vẽ thiết kế thi công nhà biệt thự không chỉ là một tập hồ sơ kỹ thuật, mà còn là linh hồn của công trình, là cầu nối giữa ý tưởng và hiện thực. Một bản vẽ chi tiết, khoa học sẽ giúp gia chủ hình dung ngôi nhà tương lai một cách chính xác, đồng thời đảm bảo quá trình thi công diễn ra thuận lợi, tiết kiệm chi phí và thời gian.

Bài viết này, Kiến trúc Hoàng Long sẽ cùng bạn khám phá 99+ bản vẽ thiết kế biệt thự độc đáo, cập nhật xu hướng 2026, đồng thời chia sẻ những bí quyết để sở hữu một bộ hồ sơ thiết kế hoàn hảo, mang đến không gian sống mơ ước.
Tầm quan trọng của bản vẽ thiết kế thi công nhà biệt thự trong thi công ngôi nhà
Nhiều người lầm tưởng rằng có thể xây nhà mà không cần bản vẽ chi tiết. Tuy nhiên, một bộ bản vẽ thiết kế thi công nhà biệt thự chuyên nghiệp mang lại những lợi ích vượt trội:

- Tối ưu chi phí và thời gian: Bản vẽ chi tiết giúp dự trù chính xác vật liệu, nhân công, từ đó tránh phát sinh chi phí không cần thiết. Đồng thời, mọi hạng mục được thể hiện rõ ràng giúp quá trình thi công diễn ra nhanh chóng, đúng tiến độ.
- Đảm bảo tính thẩm mỹ và công năng: Bản vẽ là cơ sở để kiến trúc sư và gia chủ thống nhất mọi chi tiết từ ngoại thất, nội thất đến bố trí công năng. Điều này đảm bảo ngôi nhà khi hoàn thiện sẽ đẹp, hài hòa và tiện nghi như mong muốn ban đầu.
- Kiểm soát chất lượng công trình: Dựa vào bản vẽ, đội ngũ thi công sẽ làm việc chuẩn xác, đúng kỹ thuật. Gia chủ cũng dễ dàng giám sát, kiểm tra chất lượng từng hạng mục, từ kết cấu, hệ thống điện nước đến các chi tiết hoàn thiện.
- Hỗ trợ pháp lý: Bản vẽ thiết kế là một trong những hồ sơ quan trọng để xin cấp phép xây dựng, đảm bảo công trình hợp pháp.
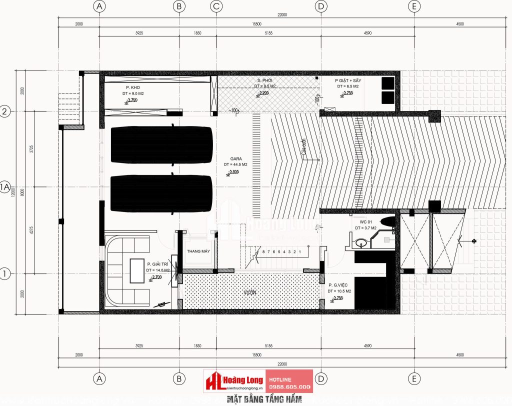
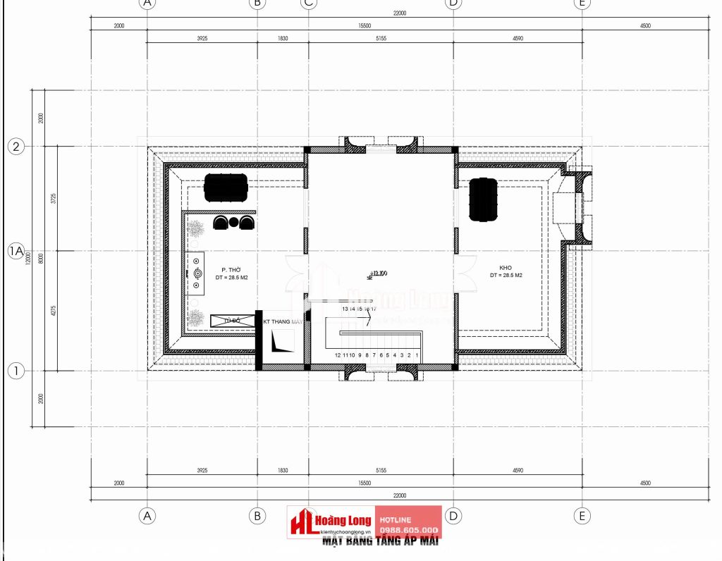
Các mẫu bản vẽ thiết kế thi công nhà biệt thự phổ biến nhất 2026
Dựa trên kinh nghiệm thực tế, Kiến trúc Hoàng Long tổng hợp các mẫu bản vẽ được tìm kiếm và ứng dụng nhiều nhất hiện nay, phù hợp với mọi phong cách và diện tích:








Bản vẽ biệt thự hiện đại:
- Đặc trưng: Tập trung vào sự tối giản, đường nét hình khối khỏe khoắn, sử dụng vật liệu kính, thép, bê tông.
- Tiêu chí bản vẽ: Bố cục mặt bằng mở, tối ưu ánh sáng tự nhiên, chú trọng hệ thống thông gió và các chi tiết kỹ thuật tinh gọn.
Bản vẽ biệt thự tân cổ điển:
- Đặc trưng: Kết hợp hài hòa giữa nét lãng mạn của cổ điển và sự tiện nghi của hiện đại.
- Tiêu chí bản vẽ: Thể hiện chi tiết các đường phào chỉ, hoa văn được tiết chế. Cần có bản vẽ 3D chi tiết để hình dung vẻ đẹp sang trọng, thanh lịch.
Bản vẽ biệt thự lâu đài, cổ điển:
- Đặc trưng: Mang vẻ đẹp uy nghi, lộng lẫy với hệ thống cột trụ, mái vòm, phù điêu.
- Tiêu chí bản vẽ: Đòi hỏi sự tỉ mỉ, chính xác cao trong từng chi tiết chạm khắc, tỷ lệ. Bản vẽ kết cấu cần vững chắc, phức tạp hơn các loại hình khác.
Bản vẽ biệt thự sân vườn, biệt thự mini:
- Đặc trưng: Tối ưu không gian xanh, giao hòa với thiên nhiên. Biệt thự mini chú trọng công năng trên diện tích vừa phải.
- Tiêu chí bản vẽ: Ngoài bản vẽ kiến trúc, cần có bản vẽ cảnh quan chi tiết, bao gồm bố trí cây xanh, tiểu cảnh, hồ bơi,…
Khách hàng luôn tin tưởng lựa chọn Kiến Trúc Hoàng Long
Để sở hữu một bộ bản vẽ thiết kế thi công nhà biệt thự hoàn hảo, bạn cần một đối tác chuyên nghiệp, giàu kinh nghiệm. Kiến trúc Hoàng Long tự hào là đơn vị đã và đang đồng hành cùng hàng trăm dự án biệt thự trên khắp cả nước.

- Đội ngũ kiến trúc sư tài năng: Với hơn 12 năm kinh nghiệm thực tế, chúng tôi am hiểu sâu sắc về kiến trúc, kỹ thuật và vật liệu. Mỗi bản vẽ đều là tâm huyết của đội ngũ, đảm bảo tính thẩm mỹ, công năng và khả thi khi thi công.
- Quy trình làm việc chuyên nghiệp: Chúng tôi cung cấp dịch vụ khép kín từ khâu tư vấn, lên ý tưởng, thiết kế 2D/3D đến triển khai bản vẽ thi công chi tiết.
- Bản vẽ đạt tiêu chuẩn quốc tế: Mỗi bộ hồ sơ của Kiến trúc Hoàng Long đều được kiểm tra kỹ lưỡng, đảm bảo đầy đủ các hạng mục từ kiến trúc, kết cấu, điện nước đến nội thất, giúp quá trình thi công diễn ra thuận lợi, đúng cam kết.
Một bộ bản vẽ thiết kế thi công nhà biệt thự chuyên nghiệp không chỉ giúp bạn tiết kiệm chi phí mà còn là sự đảm bảo cho chất lượng và vẻ đẹp bền vững của công trình. Với sự tận tâm, chuyên nghiệp và kinh nghiệm đã được khẳng định, Kiến trúc Hoàng Long cam kết sẽ biến ý tưởng của bạn thành hiện thực một cách hoàn hảo nhất.
Bạn đang tìm kiếm một bộ bản vẽ thiết kế thi công chuyên nghiệp? Hãy liên hệ ngay với Kiến trúc Hoàng Long để được tư vấn và nhận báo giá chi tiết, sở hữu ngay ngôi nhà mơ ước của bạn.


