Biệt thự 3 tầng là lựa chọn lý tưởng cho những gia đình đa thế hệ, vừa mang lại không gian sống rộng rãi, tiện nghi, vừa thể hiện sự bề thế, sang trọng. Tuy nhiên, để biến ý tưởng thành hiện thực, một bản vẽ thiết kế nhà biệt thự 3 tầng chi tiết, khoa học là yếu tố quyết định. Bản vẽ không chỉ là những đường nét kỹ thuật mà còn là kim chỉ nam cho toàn bộ quá trình xây dựng.

Bài viết này, Kiến trúc Hoàng Long sẽ cùng bạn khám phá những bản vẽ biệt thự 3 tầng được săn đón nhất năm 2026 và giải mã vẻ đẹp hoàn hảo từ công năng đến thẩm mỹ.
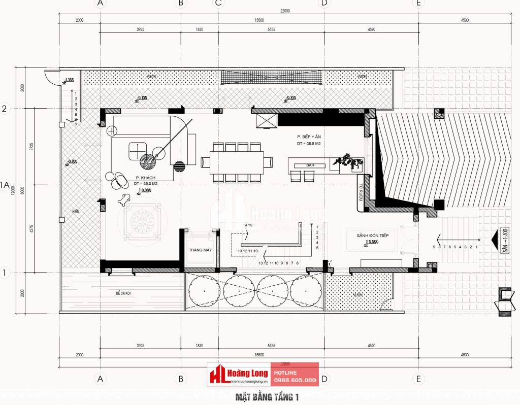
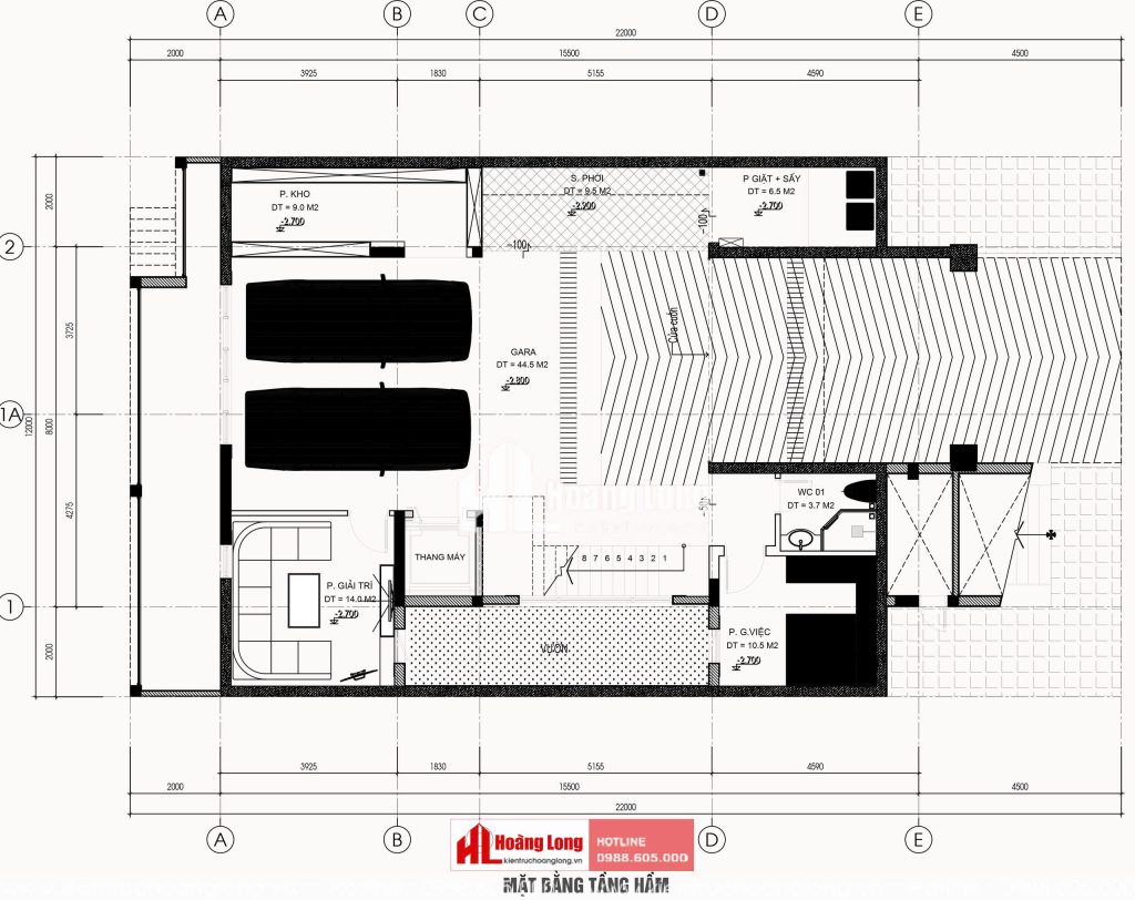
Tại sao bản vẽ thiết kế nhà biệt thự 3 tầng quan trọng trong thiết kế
Bản vẽ thiết kế đóng vai trò then chốt, quyết định sự thành bại của một công trình.

- Định hình không gian sống: Bản vẽ giúp gia chủ hình dung rõ ràng về ngôi nhà tương lai, từ cách bố trí các phòng chức năng, lối đi lại, đến vị trí cửa sổ, ban công. Điều này giúp tối ưu hóa công năng và đảm bảo sự tiện nghi trong sinh hoạt hàng ngày.
- Tối ưu chi phí và thời gian: Bản vẽ chi tiết giúp kiểm soát được số lượng vật liệu, nhân công, từ đó tránh phát sinh chi phí không cần thiết. Nó cũng là cơ sở để giám sát quá trình thi công, đảm bảo đúng tiến độ và chất lượng công trình.
- Thể hiện phong cách cá nhân: Bản vẽ là nơi kiến trúc sư và gia chủ cùng nhau sáng tạo, biến những ý tưởng về phong cách, sở thích thành hiện thực. Từ hiện đại, tân cổ điển đến cổ điển, mỗi đường nét trên bản vẽ đều thể hiện gu thẩm mỹ độc đáo của gia chủ.
Phân tích các loại hình bản vẽ thiết kế nhà biệt thự 3 tầng
Mỗi loại hình biệt thự lại có những yêu cầu riêng về bản vẽ. Dưới đây là những phong cách được ưa chuộng nhất hiện nay:





Bản vẽ biệt thự 3 tầng hiện đại:
- Đặc điểm: Tập trung vào đường nét hình khối khỏe khoắn, không gian mở, vật liệu hiện đại như kính, thép, bê tông. Bản vẽ thể hiện sự tối giản, phóng khoáng nhưng vẫn đảm bảo sự tiện nghi, thông minh.
- Phù hợp với: Gia đình chủ yêu thích sự trẻ trung, năng động, đề cao công năng sử dụng.
Bản vẽ biệt thự 3 tầng tân cổ điển:
- Đặc điểm: Là sự kết hợp hài hòa giữa nét lãng mạn của cổ điển và sự tiện nghi của hiện đại. Bản vẽ thể hiện các chi tiết phào chỉ, hoa văn được tiết chế, tạo sự sang trọng, thanh lịch.
- Phù hợp với: Gia chủ yêu thích vẻ đẹp vượt thời gian, quý phái.
Bản vẽ biệt thự 3 tầng cổ điển:
- Đặc điểm: Mang vẻ đẹp uy nghi, lộng lẫy với hệ thống cột trụ, mái vòm, phù điêu được chạm khắc tỉ mỉ. Bản vẽ đòi hỏi sự chính xác tuyệt đối trong từng đường nét để thể hiện sự bề thế, quyền uy.
- Phù hợp với: Gia chủ có diện tích đất lớn, mong muốn khẳng định vị thế.
Xem thêm: Các công trình thiết kế biệt thự HOT 2025
Kiến trúc Hoàng Long bản vẽ thiết kế nhà biệt thự 3 tầng
Để có một bản vẽ thiết kế nhà biệt thự 3 tầng hoàn hảo, bạn cần một đơn vị uy tín, giàu kinh nghiệm. Kiến trúc Hoàng Long tự hào là lựa chọn hàng đầu, mang đến những giải pháp thiết kế vượt trội.

- Tầm nhìn và sự am hiểu chuyên sâu: Với hơn 12 năm kinh nghiệm, chúng tôi không chỉ tạo ra bản vẽ mà còn giải quyết bài toán không gian, phong thủy, và chi phí cho gia chủ.
- Bản vẽ thiết kế độc bản: Mỗi công trình là một tác phẩm nghệ thuật độc nhất. Kiến trúc sư của chúng tôi lắng nghe và thấu hiểu mong muốn của bạn để tạo ra bản vẽ “đo ni đóng giày”, thể hiện cá tính riêng biệt.
- Quy trình làm việc chuyên nghiệp, khép kín: Chúng tôi cung cấp dịch vụ trọn gói từ tư vấn, thiết kế bản vẽ đến thi công hoàn thiện. Điều này giúp đảm bảo sự đồng bộ, chất lượng cao nhất và minh bạch chi phí, giúp bạn an tâm tuyệt đối.


Bản vẽ thiết kế nhà biệt thự 3 tầng không chỉ là một tài liệu kỹ thuật, mà là nền tảng vững chắc để xây dựng nên một không gian sống mơ ước. Với sự tận tâm, chuyên nghiệp và kinh nghiệm đã được khẳng định, Kiến trúc Hoàng Long cam kết sẽ biến ý tưởng của bạn thành một công trình kiến trúc vượt thời gian.
Hãy liên hệ ngay với Kiến trúc Hoàng Long để được tư vấn và nhận báo giá chi tiết cho bản vẽ thiết kế biệt thự 3 tầng của bạn.


