Chi phí cho bản vẽ thiết kế biệt thự luôn là mối quan tâm hàng đầu của mọi gia chủ trước khi bắt đầu xây dựng tổ ấm. Nhiều người lầm tưởng đây chỉ là một khoản nhỏ trong tổng ngân sách, nhưng trên thực tế, một bản vẽ chất lượng chính là chìa khóa quyết định sự thành công, tính thẩm mỹ và công năng của toàn bộ công trình.
![[Cập nhật] Chi phí cho bản vẽ thiết kế biệt thự 2026 1 Bản Vẽ Thiết Kế Biệt Thự Hot 2026](https://kientruchoanglong.vn/wp-content/uploads/2025/09/ban-ve-thiet-ke-biet-thu-5-1024x767.jpg)
Bài viết này, Kiến trúc Hoàng Long sẽ cập nhật chi tiết chi phí thiết kế biệt thự năm 2026, đồng thời phân tích các yếu tố ảnh hưởng và đưa ra giải pháp giúp bạn tối ưu hóa ngân sách mà vẫn sở hữu một bản vẽ hoàn hảo.
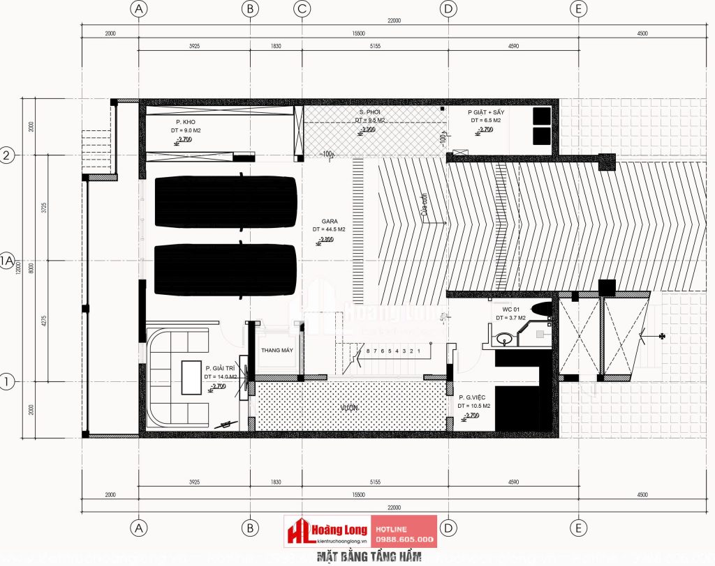
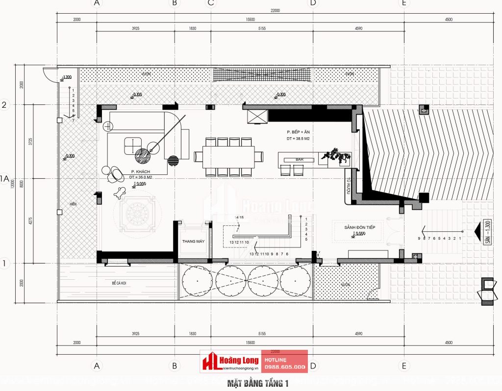
Chi phí cho bản vẽ thiết kế biệt thự gồm những gì?
Chi phí cho bản vẽ thiết kế biệt thự thường được tính theo m2 và chia làm hai hạng mục chính:
![[Cập nhật] Chi phí cho bản vẽ thiết kế biệt thự 2026 2 Bản Vẽ Thiết Kế Biệt Thự Hot 2026](https://kientruchoanglong.vn/wp-content/uploads/2025/09/ban-ve-thiet-ke-biet-thu-4-1024x796.jpg)
- Thiết kế kiến trúc: Bao gồm các bản vẽ mặt bằng, mặt cắt, mặt đứng, phối cảnh 3D ngoại thất, hồ sơ kỹ thuật thi công. Đây là phần quan trọng nhất, định hình hình dáng, quy mô và kết cấu của biệt thự.
- Thiết kế nội thất: Bao gồm bản vẽ bố trí mặt bằng nội thất, phối cảnh 3D các không gian chính như phòng khách, phòng bếp, phòng ngủ và hồ sơ kỹ thuật thi công nội thất. Phần này giúp định hình phong cách, vật liệu và cách sắp xếp đồ đạc bên trong.
Các yếu tố ảnh hưởng đến chi phí bản vẽ thiết kế biệt thự
Chi phí thiết kế không cố định mà phụ thuộc vào nhiều yếu tố:
![[Cập nhật] Chi phí cho bản vẽ thiết kế biệt thự 2026 3 Bản Vẽ Thiết Kế Biệt Thự Hot 2026](https://kientruchoanglong.vn/wp-content/uploads/2025/09/ban-ve-thiet-ke-biet-thu-3-1024x812.jpg)
- Phong cách kiến trúc: Phong cách hiện đại thường có chi phí thấp hơn do đường nét đơn giản. Trong khi đó, phong cách tân cổ điển hoặc cổ điển yêu cầu sự tỉ mỉ, nhiều chi tiết phức tạp, do đó chi phí sẽ cao hơn.
- Diện tích xây dựng: Diện tích càng lớn, chi phí thiết kế càng cao. Tuy nhiên, đơn giá trên mỗi m2 thường sẽ giảm khi diện tích tăng.
- Mức độ phức tạp của công trình: Một biệt thự có nhiều tầng hầm, sân vườn, hồ bơi hoặc các tiện ích đặc biệt khác sẽ đòi hỏi nhiều công sức thiết kế hơn, kéo theo chi phí tăng.
- Uy tín và kinh nghiệm của đơn vị thiết kế: Các công ty có thương hiệu, đội ngũ kiến trúc sư giàu kinh nghiệm thường có mức giá cao hơn, nhưng đi kèm với đó là chất lượng bản vẽ, sự chuyên nghiệp và tính thẩm mỹ vượt trội.
Phân tích chi phí cho bản vẽ thiết kế biệt thự 2026
Dựa trên khảo sát thị trường và kinh nghiệm thực tế, chi phí thiết kế biệt thự năm 2026 sẽ có những biến động nhất định. Mức giá trung bình sẽ dao động như sau:
![[Cập nhật] Chi phí cho bản vẽ thiết kế biệt thự 2026 4 Bản Vẽ Thiết Kế Biệt Thự Hot 2026](https://kientruchoanglong.vn/wp-content/uploads/2025/09/ban-ve-thiet-ke-biet-thu-1024x804.jpg)
![[Cập nhật] Chi phí cho bản vẽ thiết kế biệt thự 2026 5 Bản Vẽ Thiết Kế Biệt Thự Hot 2026](https://kientruchoanglong.vn/wp-content/uploads/2025/09/ban-ve-thiet-ke-biet-thu-1-1024x794.jpg)
![[Cập nhật] Chi phí cho bản vẽ thiết kế biệt thự 2026 6 Bản Vẽ Thiết Kế Biệt Thự Hot 2026](https://kientruchoanglong.vn/wp-content/uploads/2025/09/ban-ve-thiet-ke-biet-thu-2-1024x798.jpg)
- Thiết kế kiến trúc: Khoảng từ 150.000 VNĐ – 300.000 VNĐ/m2.
- Thiết kế nội thất: Khoảng từ 200.000 VNĐ – 400.000 VNĐ/m2.
Đối với các dự án lớn hoặc yêu cầu đặc biệt, chi phí có thể được thương lượng và tính toán riêng.
Giải pháp tối ưu chi phí & đảm bảo chất lượng từ Kiến trúc Hoàng Long
Tại Kiến trúc Hoàng Long, chúng tôi hiểu rằng chi phí là yếu tố quan trọng. Chúng tôi cam kết mang đến giải pháp tối ưu nhất cho khách hàng:
![[Cập nhật] Chi phí cho bản vẽ thiết kế biệt thự 2026 7 Bản Vẽ Thiết Kế Biệt Thự Hot 2026](https://kientruchoanglong.vn/wp-content/uploads/2025/09/ban-ve-thiet-ke-biet-thu-6-1024x768.jpg)
- Báo giá minh bạch, chi tiết: Mọi chi phí đều được liệt kê rõ ràng trong hợp đồng, giúp bạn dễ dàng kiểm soát ngân sách.
- Chính sách ưu đãi: Chúng tôi thường xuyên có các chương trình khuyến mãi, đặc biệt là miễn phí thiết kế kiến trúc khi ký hợp đồng thi công trọn gói.
- Thiết kế chuẩn chỉnh, tránh phát sinh: Một bản vẽ chi tiết, chuẩn xác ngay từ đầu sẽ giúp giảm thiểu rủi ro, sai sót và chi phí phát sinh trong quá trình thi công.
- Đội ngũ kiến trúc sư kinh nghiệm: Với hơn 12 năm kinh nghiệm, đội ngũ của chúng tôi không chỉ tạo ra những bản vẽ đẹp mà còn đảm bảo tính khả thi, tối ưu công năng và vật liệu.
Đầu tư vào một bản vẽ thiết kế biệt thự chất lượng là một quyết định thông minh, giúp bạn tiết kiệm chi phí về lâu dài và sở hữu một ngôi nhà hoàn hảo. Tại Kiến trúc Hoàng Long, chúng tôi cam kết mang đến những giải pháp thiết kế toàn diện, chuyên nghiệp, biến ngôi nhà mơ ước của bạn thành hiện thực một cách trọn vẹn nhất.
Bạn đang tìm kiếm giải pháp thiết kế biệt thự tối ưu chi phí? Hãy liên hệ ngay với Kiến trúc Hoàng Long để được tư vấn miễn phí và nhận báo giá chi tiết cho công trình của bạn.


